華夏四季168㎡丨繁華落幕后,愛上簡約的生活
生活有多少場景,
家就有多少想象。
生活是一場漫長的修行,
精致 優雅 才是對生活最好的回饋。
家居空間,
作為重要的構建生活的場所,
在其間寄托無限情感,
以經典品味刻畫生活空間。
執著地追求愛與美,
創造下平淡日常里的生活藝術,
承載下那一份美好的幸福感。
案例分享
項目信息:昆明/華夏四季
AREA / 面積:168㎡
STYLE / 風格:現代風格
HOUSE TYPE / 類型:平層
DESIGN AGENCY /設計施工:幸福金芒果裝飾
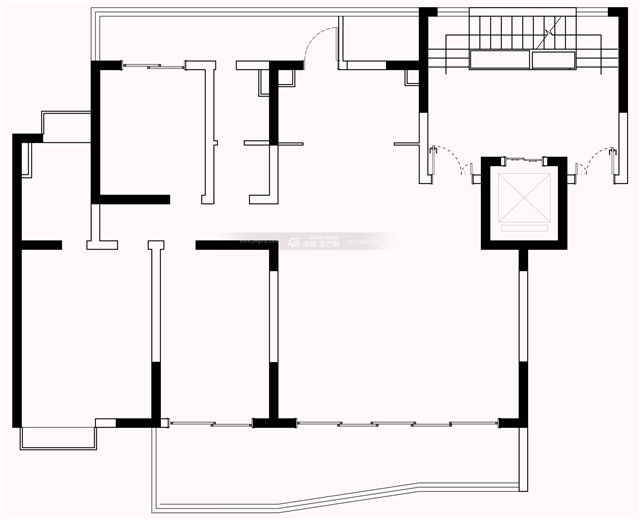
平面分析
原始戶型

改造后平面布置

01 入戶玄關
避免入戶視線一通到底,用玄關讓空間層次感更豐富。隔而不斷,隱而微現,若隱若現間,光影下的家居高級感得以展現。入戶玄關半隔斷,一進門互動感隨即展現,避免產生封閉的感覺。

02 客廳
奶油色與灰、黑色的美好碰撞,溫軟與沉穩,兩種格調碰撞下的絕妙氣場,呈現獨特有魅力的家居韻味。無主燈設計,無聲勝有聲。光源溫柔的覆蓋著整個屋子,心亦柔軟、平靜下來。 有多久沒有看看家里的綠植了?蓬勃的生機與活力讓空間也活了起來。

開放式書房,黑色的柜體讓視線有了重心,紅色柜體的點綴下,空間變得穩重起來。造型簡約的茶幾,用幾何形狀表達著空間的利落與造型感。

清透而自在,思維可以肆意穿透般,詮釋著家居里的自由感。將線條簡化,將顏色沉淀,塑造經典耐看的品質空間。 一盞落地燈,家居格調和節奏變得更加豐富。

不規則沙發,突破空間的桎梏,讓空間變得更加靈動。彰顯自由和自在。 整體潔凈、利落的白色調,心情也變得干凈、簡單起來,放下嘈雜,放松身心。寬大的落地窗,空間變得更加通透。窗外繁花似錦,窗內舒逸生活。

繁簡得當,節奏輕快,在有序的空間里,情感得到充分的互動和表達,一切溫存和美好都無處藏身。

03 臥室
溫暖的木材刻畫溫柔、親和力強的就寢空間,把一天最沒有偽裝的一面留給這里,空間也變得真誠而毫無壓力。 床頭格柵的造型增加空間層次感,溫暖的橘色點綴讓房間變得暖暖的。當清晨的陽光灑落,開啟一天的美好心情。



