【幸福金芒果】昆明華夏四季:現代極簡風,不落俗套的高級!
項目地址:昆明華夏四季小區
項目風格:現代極簡
設計單位:幸福金芒果裝飾
今天,幸福金芒果裝飾繼續給大家分享昆明華夏四季小區的設計案例,這一套也屬于現代風格,但卻是不一樣的現代極簡風!雖然極簡主義以“少”著稱,但這并不意味著極簡主義就是空洞、乏味的,反而演變成一種生活方式,受到越來越多人的喜歡,大道至簡,也是一種理想的生活狀態。

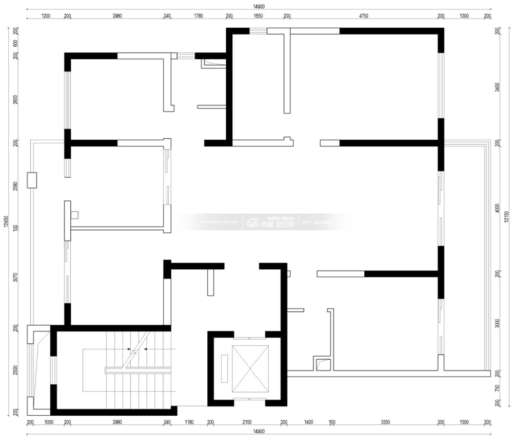
原始戶型圖

平面布置圖
分析:
1、原戶型南北通透、空間方正、電梯入戶、超大陽臺,但空間承重較多,衛生間較小;
2、拆除部分墻體,合理的空間布局后,令整個空間動靜分區明顯;
3、主臥個性化設計,衣帽間與衛生間布置在同一區域,帶來豪華的套房體驗。
入戶門廳

玄關是進門后的第一空間。玻璃柜體、格柵木飾面、爵士白飾面,不同材質的巧妙結合為空間帶來豐富的層次變化,每一次歸家都賞心悅目、倍感輕松!
客廳

石膏板弧形吊頂簡約清爽不繁雜,電視背景墻的格柵木飾面與玄關處相互呼應,內嵌式燈帶散發出柔和的光源,一整個暖暖的氛圍感。

頂面、墻面、沙發為同色系,視覺上清爽不雜亂很舒服。沒有冗余的設計,用純凈低調的設計語言,營造出現代極簡的空間美學,空間的留白也不是單純的留白,而是留下更多的遐想空間,讓人余味無窮!

餐廳多以清新色調鋪陳,曲線吊燈獨具一格,大大提升了視覺的張力,給空間帶來更多的設計感!
主臥

極簡黑白灰的風格顯得高級又神秘。床頭背景墻嵌入式燈帶與造型吊燈看起來科技感十足,大大提升了空間整體格調。黑玻璃一體式衣柜酷感十足,早上起床就能快速地選好心儀的衣服,再也不用亂翻了!
主衛

整個浴室空間干凈、整潔、大氣。一個好的浴室柜需要合理的功能分區,灰色巖板臺面+儲物小邊柜,巧妙的空間收納滿足業主洗漱用品、護膚用品等擺放。

衛生間的地面選用了極簡灰的色系,耐臟又顯高級。玻璃淋浴房干濕分離,擁有一個大浴缸真的很幸福,工作結束回到家,泡一個美美的澡、躺在浴缸里、聽著音樂,簡直不要太舒服!
以上就是幸福金芒果裝飾給大家帶來的設計分享了,大家喜歡昆明華夏四季小區的這套極簡風嗎?


